圆柱齿轮 检验实施规范 第3部分:
齿轮坯、轴中心距和轴线平行度
1范围
本指导性技术文件对齿轮坯、中心距的尺寸偏差和轴线平行度提供了推荐数值。
本指导性技术文件中所列的数值不应认为是严格的质量准则,而是对钢制或铁制的齿轮在商订相互的协议时,作为一个指导。
2 引用标准
下列标准所包含的条文,通过在本指导性技术文件中引用而构成为本指导性技术文件条文。本指导性技术文件出版时,所示版本均为有效。所有标准都会被修订,使用本指导性技术的各方应探讨使用下列标准最新版本的可能性。
GB/T 1356-2001 通用机械和重型机械用圆柱齿轮 标准基本齿条齿廓(idt ISO 53:1998)
GB/T 1357-1987 渐开线圆柱齿轮模数(neq ISO 54:1977)
GB/T 1800.1-1997 极限与配合 基础 第1部分:词汇(neq ISO 286-1:1988)
GB/T 10095.1-2001 渐开线圆柱齿轮 精度 第1部分:轮齿同侧齿面偏差的定义和允许值(idt ISO 1328-1:1997)
GB/T 10095.2-2001 渐开线圆柱齿轮 精度 第2部分:径向综合偏差与径向跳动的定义和允许值(idt ISO 1328-2:1997)
3 符号和定义
3.1 符号
单项要素测量所用的偏差符号,用小写字母(如f)加上相应的下标组成;而表示若干单项要素偏差组合的“总”偏差所用的符号,采用大写字母(如F)加上相应的下标组成。
a
|
a |
中心距 |
mm |
|
b |
齿宽 |
mm |
|
Dd |
基准面直径 |
mm |
|
Df |
安装面直径 |
mm |
|
f∑β |
轴线平面内的轴线平行度偏差 |
μm |
|
f∑β |
垂直平面上的轴线平行度偏差 |
μm |
|
Fβ |
螺旋线总偏差 |
μm |
|
FP |
齿距累积总偏差 |
μm |
|
L |
较大的轴承跨距 |
mm |
|
n |
公差链中的链节数 |
|
3.2 定义
本指导性技术文件采用下列定义。
3.2.1 工作安装面
是用来安装齿轮的面。
3.2.2 工作轴线
是指齿轮在工作时绕其旋转的轴线,它是由工作安装面的中心确定的。工作轴线只有在考虑整个齿轮组件时才有意义。
3.2.3 基准面
是用来确定基准轴线的面。
3.2.4 基准轴线
是由基准面中心确定的。齿轮依此轴线来确定齿轮的细节,特别是确定齿距、齿廓和螺旋线的公差。
3.2.5 制造安装面
是齿轮制造或检测时用来安装齿轮的面。
4 齿轮坯的精度
本章论述的基准轴线、用来确定它的基准面以及其他相关的基准面的选择并给予充分明确的规定。
有关齿轮轮齿精度(齿廓偏差、相邻齿距偏差等等)的参数的数值,只有明确其特定的旋转轴线时才有意义。当测量时齿轮围绕其旋转的轴如有改变,则这些参数测量值也将改变。因此在齿轮的图纸上必须把规定轮齿公差的基准轴线明确表示出来,事实上所有整个齿轮的几何形状均以其为准。
齿轮坯的尺寸偏差和齿轮箱体的尺寸偏差对于齿轮副的接触条件和运行状况有着极大的影响。由于在加工齿轮坯和箱体时保持较紧的公差,比加工高精度的轮齿要经济得多。因此应首先根据拥有的制造设备的条件,尽量使齿轮坯和箱体的制造公差保持最小值。这种办法,可使加工的齿轮有较松的公差,从而获得更为经济的整体设计。
4.1 基准轴线与工作轴线之间的关系
基准轴线是制造者(和检测者)用来对单个零件确定轮齿几何形状的轴线,设计者的责任是确保基准轴线得到足够清楚和精确的确定,从而保证齿轮相应于工作轴线的技术要求得以满足。
满足此要求的最常用的方法是确定基准轴线使其与工作轴线重合,即将安装面作为基准面
然而,在一般情况下首先需确定一个基准轴线,然后将其他所有的轴线(包括工作轴线及可能还有一些制造轴线)用适当的公差与之相联系,在此情况下,公差链中所增加的链节的影响应该考虑进去。
4.2 确定基准轴线的方法
一个零件的基准轴线是用基准面来确定的,有三种基本方法实现它:
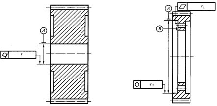
4.2.1 第1种方法 如图1所示,用两个“短的”圆柱或圆锥形基准面上设定的两个圆心来确定轴线上的两个点。
4.2.2 第2种方法 如图2所示,用一个“长的”圆柱或圆锥形的面来同时确定轴线的位置和方向。孔的轴线可以用与之相匹配正确地装配的工作芯轴的轴线来代表。
4.2.3 第3种方法 如图3所示,轴线的位置用一个“短的”圆柱形基准面上的一个圆的圆心来确定,而其方向则用垂直于此轴线的一个基准端面来确定。
如果采用第1或第3种方法,其圆柱或圆锥形基准面必须是轴向很短的,以保证它们自己不会单独确定另一条轴线。在第3种方法中,基准面的直径应该越大越好。
在与小齿轮做成一体的轴上常常用一段需安装大齿轮的地方,此安装面的公差值必须选择得与大齿轮的质量要求相适应。
注:A和B是预定的轴承安装表面。
图1 用两个“短的”基准面确定基准轴线
图2 用一个“长的”基准面确定基准轴线
图3用一个圆柱和一个端面确定基准轴线
4.3 中心孔的应用
在制造和检测时,对待与轴做成一体的小齿轮最常用也是最满意的方法,是将该零件安置于两端的顶尖上。这样,两个中心孔就确定了它的基准轴线,齿轮公差及(轴承)安装面的公差均须相对于此轴线来规定(见图4),而且很明显,安装面相对于中心孔的跳动公差必须规定很紧的公差值(见4.6).
务必注意中心孔60°接触角范围内应对准成一直线。
4.4 基准面的形状公差
基准面的要求精度取决于:
——规定的齿轮精度,这些面的极限值应确定得大大紧于单个轮齿的极限值;
——这些面的相对位置,一般地说,跨距占齿轮分度圆直径的比例越大,给定的公差可以越松。
这些面的精度要求,必须在零件图上规定。
所有基准面的形状公差不应大于表1中所规定的数值。公差应减至最小。
图4 用中心孔确定基准轴线
表1 基准面与安装面的形状公差
|
确定轴线的基准面 |
公差项目 |
|
圆度 |
圆柱度 |
平面度 |
|
两个“短的”圆柱或圆锥形基准面 |
0.04(L/b)Fβ或0.1Fp
取两者中之小值 |
|
|
|
一个“长的”圆柱或圆锥形基准面 |
|
0.04(L/b)Fβ或0.1Fp
取两者中之小值 |
|
|
一个短的圆柱面
和一个端面 |
0.06Fp |
|
0.06(Dd/b) Fβ |
|
注:齿轮坯的公差应减至能经济地制造的最小值。 |
4.5 工作及制造安装面的形状公差
工作安装面的形状公差,不应大于表1中所给定的数值。如果用了另外的制造安装面时,应采用同样的限限制。
4.6 工作轴线的跳动公差
如果工作安装面被选择为基准面,则不涉及本条。当基准轴线与工作轴线并不重合时,则工作安装面相对于其准轴线的跳动必须在图样上予以控制。跳动公差不应大于表2中规定的数值。
表2 安装面的跳动公差
|
确定轴线的基准面 |
跳动最(总的指示幅度) |
|
径向 |
轴向 |
|
仅指圆柱或圆锥形基准面 |
0.05(L/b) Fβ或0.3 Fp
取两者中之大值 |
|
|
一个圆柱基准面和一个端面基准面 |
0.3 Fp |
0.2(Dd/b) Fβ |
|
注:齿轮坯的公差应减至能经济地制造的最小值。 |
4.7 齿轮切削和检测时使用的安装面
在制造中,切削轮齿使其达到规定的公差以及在检测时,测量其实际偏差使测量值有足够的精确度,十分重要的一点是在制造中检测过程中,齿轮的安装应使其旋转的实际轴线尽可能地与图样上规定的基准线相接近。
除非在制造和检测中用不定期安装齿轮的安装面就是基准面,否则这些安装面相对于基准轴线的位置也必须予以控制。表2中所给的数值可作为这些面合适的公差值。为了获得最高的精度,如制造高质量齿轮时所做的,将跳动“高点”的位置和数值标记在基准面的附近,在每一步找正时,重复其相当的跳动量。
在制造齿轮坯的严格过程控制中,要应用精确的膨胀式芯轴以齿轮坯的中心定位,要应用一适当的夹具以支承齿轮坯使之在限定的跳动量内,还要用高质量的齿轮加工机床,在齿轮加工机床上,齿轮坯的位置只须对一批工件中的首件进行检查。这个步骤是大批量加工齿时的典型步骤。
对于高精度齿轮,必须设置专门的基准面(见图5)。对于很高精度的齿轮(例如果GB/T 10095.1的4级精度或更高),齿轮加工前需装在轴上,在这种情况下,轴颈可用作基准面。
4.8 齿顶圆柱面
设计都应适当选择顶圆直径的公差以保证最小限度的设计重合度,同时又具有足够的面隙。如果把齿顶圆柱面作为基准面,上述数值仍可用作尺寸公差,而其形状公差不应大于表1中的适当数值。
4.9 公差的组合
当工作轴线与基准轴线重合时,或可直接从工作轴线来规定公差时,可应用表2的公差。不是这种情形时,则两者之间存在着一公差链,此时就需要把那些表1和表2中的单项公差数值适当减小。减小的程度取决于该公差链排列,一般大致与n的平方根成正比,其中n为公差链中的链节数。
图5 高精度齿轮带有基准面
对于很高精度的齿轮,通常需要先把齿轮装到轴上然后再精加工轮齿。如果做不到时,可将装配后的齿轮,在其基准面上测量跳动量,用此法来表明所要求的总的齿轮精度已经达到。这种测量不仅能发现由于所有工作安装面的综合跳动所导致的误差,而且还能发现由于装在轴上的任何轴承圈的跳动所导致的误差。
4.10 其他齿轮的安装面
在与小齿轮做成一体的轴上,常常有一段安装一个大齿轮。这时大齿轮安装面的公差应妥善考虑大齿轮轮齿的质量要求所进行选择。常用的适当办法是相当于已经确定的基准轴线规定允许的跳动量。
4.11 基准面
基准面是这样的(轴向和径向的)基准带,它们应加工得与齿轮坯的实际轴孔、轴颈和肩部完全同心(见图5)。
当安装在齿轮机床上加工时,或安装在检测仪上时以及最后在使用中安装时,用它们可以进行找正。对于更高精度的工件,基准面还须进行校验,对其跳动的高点,要标明其量值和位置。这个高点以及它的量值,在加工过程的每一步找正中均应复现出来,以保证很高精度齿轮的要求。
但是,很多校验齿轮装置是小批量生产的。在些情况下,装在齿轮加工机床上的齿轮的位置,在切削之前都必须校验,是校验每件齿轮坯还是部分校验,取决于齿轮制造者的经验。对于中等精度的齿轮。齿顶圆柱面的一部分可用来作为径向基准面,而轴向位置则可用齿轮切削时的安装面进行校验。
5 中心距和轴线的平行度
设计者应对中心距a和轴线的平行度两项偏差选择适当的公差。公差值的选择应按其使用要求能保证相啮合轮齿间的侧隙和齿长方向正确接触。提供在装配时调整轴承位置的设施,可能是达到高精度要求最为有效的技术措施。然而,在很多情况下,其成本之高昂很难令人接受。
在齿轮只是单向承载运转面不经常反转的情况下,量大侧隙的控制不是一个重要的考虑因素,此时中心距允许偏听偏信差主要取决于重合度的考虑。
在控制运动用的齿轮中,其侧隙必须控制;还有当轮齿上的负载常常反向时,对中心距的公差必须很仔细地考虑下列因素:
——轴、箱体和轴承的偏斜;
——由于箱体的偏差和轴承的间隙导致齿轮轴线的不一致;
——由于箱体的偏差的间隙导致齿轮轴线的错斜;
——安装误差:
——轴承跳动;
——温度的影响(随箱体和齿轮零件间的温差,中心距和材料不同而变化);
——旋转件的离心伸胀;
——其他因素,例如润滑剂污染的允许程度用非金属齿轮材料的溶胀。
当确定影响侧隙偏差的所有尺寸的公差时,应该遵照GB/Z 18620.2中关于齿厚公差和侧隙的推荐内容。
高速传动装置中心距公差的选择,还有其他考虑,不在本文件的范围之内。
齿轮传动中,有一个齿轮带动若干个齿轮(或反过来)的情形,例如行星齿轮传动中有若干个行星轮;又如在全桥驱动车的分动器或动力输出齿轮,在此情况下,为了使所有的啮合得到适当的负荷分配并有正确的工作条件,需要限制中心距的允许偏差。这种条件,要求对工作和制造的限制条件作详细的研究,不属于本文件的范围。
5.2 轴线平行度公差
由于轴线平行度偏差的影响与其向量的方向有关,对“轴线平面内的偏差”f∑δ各“垂直平面上的偏差” f∑δ作了不同的规定(见图6)。
“轴线平面内的偏差” f∑δ是在两轴线公共平面上测量的,这公共平面是用两轴承跨距中较长的一个L和另一根轴上的一个轴承来确定的,如果两个轴承的跨距相同,则用小齿轮轴和大齿轮轴的一个轴承。“垂直平面上的的偏差” f∑δ是在与轴线公共平面相相垂直的“交错轴平面”上测量的。
每项平行度度偏差是以与有关轴轴承间距离L(“轴承中间距”L)相关连的值来表示的,见图6。
轴线平面内的轴线偏差影响螺旋线啮合偏差,它的影响是工作压力角的正弦函数,而垂直平面上的轴线偏差的影响则是工作压力角的余弦函数。可见一定量的垂直平上偏差导致的啮合偏差将比同样大小的平面内偏差导致的啮合偏差要大2~3倍。因此,对这两种偏差要素要规定不同的最大推荐值。
图6 轴线平行度偏差
5.3 轴线偏差的推荐最大值
a)垂直平面上偏差f∑δ的推荐最大值为:
f
∑δ=0.5(

)……………………(1)
b)轴线平面内偏差f∑δ的推荐最大值为:
f∑δ=2f∑β……………………(2)
附录A
(提示的附录)
文献目录
1)GB/T 2821-1992 齿轮几何要素代号
2)GB/T 1182-1996 形状和位置公差 通则、定义、符号和图样表示法
3)GB/T3374-1992 齿轮基本术语
4)GB/T17851-1999 形状和位置公差 基准和基准体系
5)GN/Z 18620.1-2002 圆柱齿轮 检验实施规范 第1部分:轮齿同侧齿面的检验
6)GB/Z 18620.2-2002 圆柱齿轮 检验实施规范 第2部分:径向综合偏、径向跳动、齿厚和侧隙的检验
7)GB/Z 18620.4-2002 圆柱齿轮 检验实施规范 第4部分:表面结构和轮齿接触斑点的检验